.

SU 19" NETZWERK-WANDGEHÄUSE

EINTEILIGES WANDGEHÄUSE MIT ABNEHMBAREN SEITENWÄNDEN

  • Vorgesehen für Indooranwendungen.
  • In 6 Höhenvarianten erhältlich.
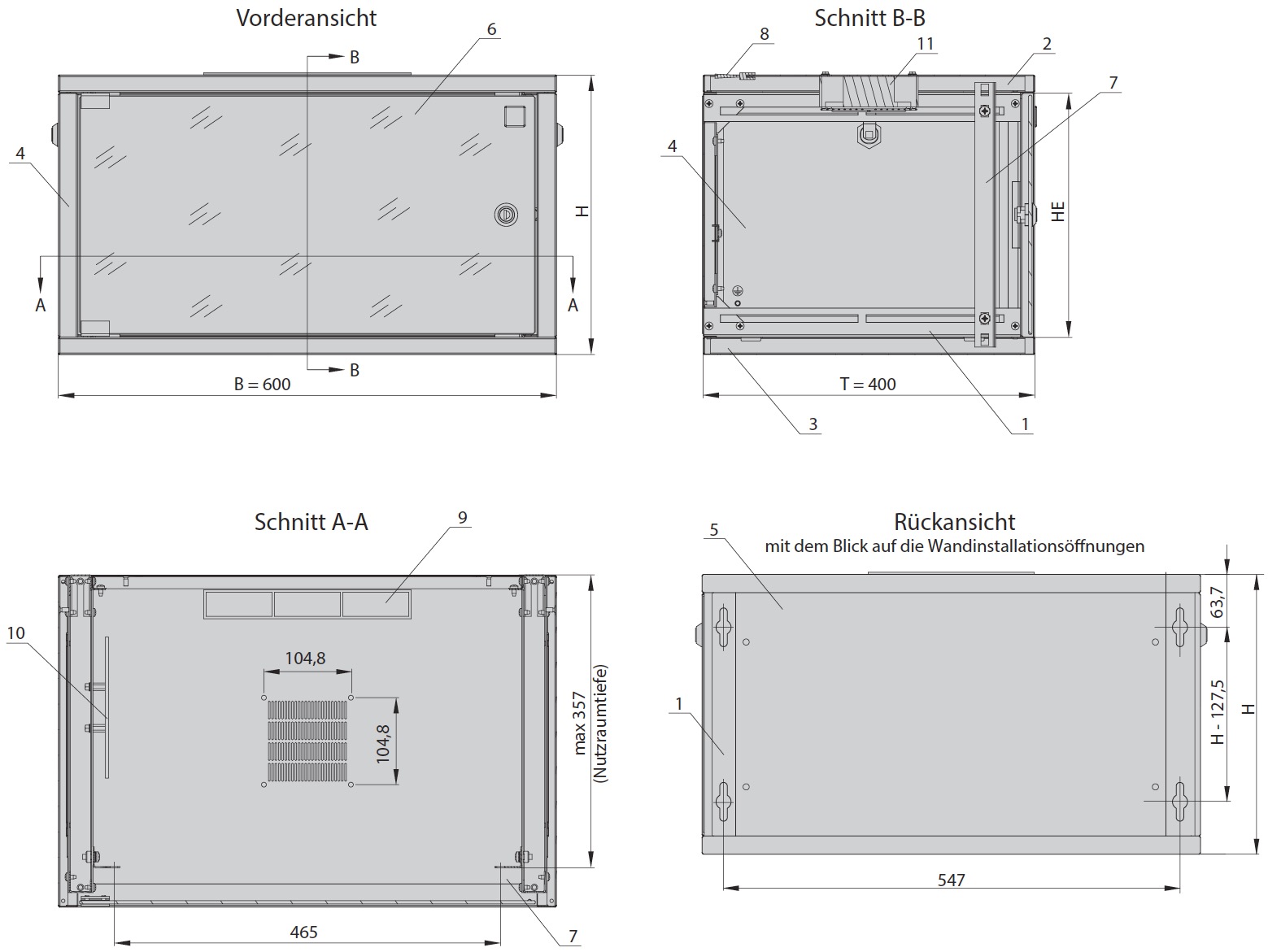
  • Das Gehäuse ist komplett verschraubt. Vorne mit Vollglasoder Stahlblechtür. Abnehmbare Seitenwände mit Schnellverschlüssen, abnehmbare Rückwand.
  • Standardmäßig ist das Gehäuse wie folgt ausgestattet: zwei 19"-Tragwinkel vorne (tiefenverstellbar), eine Bürstenleiste oben, eine Ausbruchblende unten.
  • Rückwand, Seitenwände und Blechtüren sind mit Erdungspunkten ausgestattet.
  • Wandgehäuse kann direkt - auch ohne Befestigungswinkel - an die Wand montiert werden. Mit einem sehr guten Zugang von allen Seiten durch abnehmbare Seitenwände.
  • Leichte Änderung der Richtung der Türöffnung und der Orientierung der Kabelöffnung durch Umdrehen des Gehäuses um 180°.
  • Breites Zubehörprogramm: Geräteböden, Lüftereinheit, Thermostat usw.
  • Zusätzliche 19"-Tragwinkel hinten möglich.

TECHNISCHE DATEN

Material
Gestell, Seitenwände, Rückwand, 19"-Tragwinkel - Stahlblech
Tür - Sicherheitsglas oder Stahlblech

Oberflächebehandlung
Gestell, 19"-Tragwinkel und Blindplatte - Verzinkt.
Blechtür, Seitenwände, Rückwand - RAL 7035 pullverbeschichtet.
Sonderfarben auf Wunsch.

Schutzart
IP 20 gemäß EN 60529
(betrifft nicht die Bürstenleiste).

LIEFERUMFANG

Gerüst, Bodenplatte, Dachplatte, Tür, 2 Seitenwände, Rückwand, 2 Tragwinkel, Bürstenleiste, Bohrschablone für eine einfache Wandbefestigung.

BAUTEILE 1. Verschraubtes Gestell, 2. Dachplatte, 3. Bodenplatte, 4. Abnehmbare Seitenwand, 5. Abnehmbare Rückwand, 6. Vollglasstür (oder Blechtür), 7. Tragwinkel, 8. Bürstenleiste, 9. Ausbruchblende
Zubehör, separat bestellbar:
10. Erdungsleiste, 11. Lüfter

AUSFÜHRUNGSTABELLE